• Welcome to Diskuse2 Elektrika.cz. Please login or sign up.
 
07.03.2026, 13:18

News:

              PROSÍME VŠECHNY UŽIVATELE, PŘED POUŽITÍM DISKUSÍ ČTĚTE MÍSTNÍ PRAVIDLA! ZDE ...!


Jak zapojit frekvenční měnič 3PH 230V?

Started by Jan Malý, 21.10.2008, 20:55

previous topic - next topic

Jan Malý

21.10.2008, 20:55 Last Edit: 20.11.2008, 23:42 by Administrátor fóra, čistič
Jak zapojit frekvenční měnič ?
Na štítku je napsáno 3PH 230V.
Odkud dostanu 3 x 230V?

Václav 3

Příliš málo informací, jak je proveden přívod sítě 1x 230 nebo 3x 230, čí je to výrobek, z jaké země , uveďte údaje ze štítku, fotografii přívodních a výstupních svorek.

Jan Malý

Omlouvám se za málo info.
Typ Fuji FVRO 4C11S.
Source- 3PH 200-230V 50 Hz 3,4A
Output- 3PH 0,95 kVA 200-230V 1-120Hz 2,5A

Miroš Jan

TO : Jan Malý

Soudě podle dotazu, nejste znalý elektrice. Nechte to zapojit elektrikáře, ale takový co zná problematiku pohonů a strojních zařízení, né stavebnímu.
elektromontér, RT E2/A, strojní zařízení,průmyslové instalace

Vaněk Martin

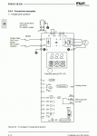
Zdravím, měniče řady FVR u nás požíváme, mám kněmu manuál, ale je v takovém stavu, že se nafotit dá velmi problematicky.Jestli máte zájem mám identické základní schema zapojení GSX600, které jsem porovnal se zapojením s FVR a je shodné.

Martin Kurka

22.10.2008, 11:12 #5 Last Edit: 22.10.2008, 11:25 by Martin Kurka
Vážený pane Malý,
hledejte na Internetu ne FVRO. 4C11S-7EN, ale FVR0 4C11S-7EN

Takže tady je náhled základního doporučeného zapojení, bližší a jiné je v manuálu na stránkách výrobce, jak to tak obvykle bývá.... ;)

http://www.fe-frontrunners.eu/inverter/en/index1.htm
soubor FVR-C11S - fialový podklad na konci stránky  ;)      
cs11s_man_en.pdf 4MB - (nevešel se sem)

Jo a nezapomeňte si motor přepojit z hvězdy do trojúhelníka na 3x220V, měnič má jednofázové napájení.

To MCCB u spínače znamená zkratově odolný spínač se zaručenou vypínací schopností.

MCCB = Moulded Case Circuit Breaker used in heavy commercial and heavy industrial applications.
MCCB 25 to 85kA and possibly greater.

(MCB = Miniture Circuit Breaker, used for domestic, light commercial and light industrial applications.
MCB 4 to 16kA)

Nikdy není dost času,aby se to udělalo dobře. Ale pak je dost času, aby se to udělalo znovu

Teorie=vše víme ale nic nefunguje
Praxe=vše funguje a nevíme proč
Teorie spojena s praxí=nic nefunguje a nikdo neví proč

Vysoce odborných omylů se dopouští jen specialisté

Ďábel je skryt v detailu

Zdenek Rajmont

Menic se pripoji na fazove napeti 230V. Vyberte si k tomu 2 privodni svorky menice, ktere se Vam nejvice libi. Motor (pokud to jde) treba prepojit do trojuhelnika na 230V. Jinak mate 3x mensi moment.
Pokud je problém neřešitelný, tak to nikomu neříkejte. Vždy se totiž někde najde blbec který to neví a vyřeší to.
Kdo dře jako kůň, je osel.
www.rajmont.cz